Basis
- Land: Albanië
- Datum toegevoegd: 5 maanden geleden toegevoegd
- Slaapkamers: 1
- Badkamers: 1
- Etage: 1
- Woonoppervlakte: 72 m³
- Bouwjaar: 2028
Beschrijving
-
Beschrijving:
Eenslaapkamerappartement te koop – Saranda (Nieuwbouw) voor €129.000
Te koop: een appartement in een splinternieuw project vlak bij de zee. Modern design, veel natuurlijk licht, balkon met prachtig uitzicht. Een uitstekende kans voor wonen of investering! Neem contact met ons op voor meer details.
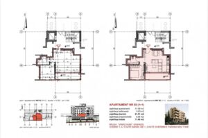
Totale oppervlakte: 71,46 m²
Gemeenschappelijke oppervlakte: 9,95 m²
Appartementoppervlakte: 51,88 m²
Balkonoppervlakte: 9,63 m²Indeling:
-
Woonkamer
-
Keuken
-
Eén slaapkamer
-
Eén badkamer
-
Balkon met uitzicht
Kenmerken:
-
Gelegen op de eerste verdieping (van 5 verdiepingen)
-
Lift aanwezig
-
Oplevering gepland in 2028
-
Drukke, toeristische omgeving het hele jaar door
-
Uitstekende investering voor verhuur via Airbnb/Booking
-
Bars, restaurants, bakkerijen en supermarkten in de buurt
-
Hoogwaardige constructie voor comfortabel wonen
-
Graffiti-gevel
-
Capot-systeem
-
Dubbel glas
-
Thermische en akoestische isolatie
Afstanden:
-
25 minuten van het stadscentrum
-
20 minuten van de haven van Saranda
-
